代沢2丁目新築戸建
Room plan間取り

光とデザインが調和する心地よい邸宅
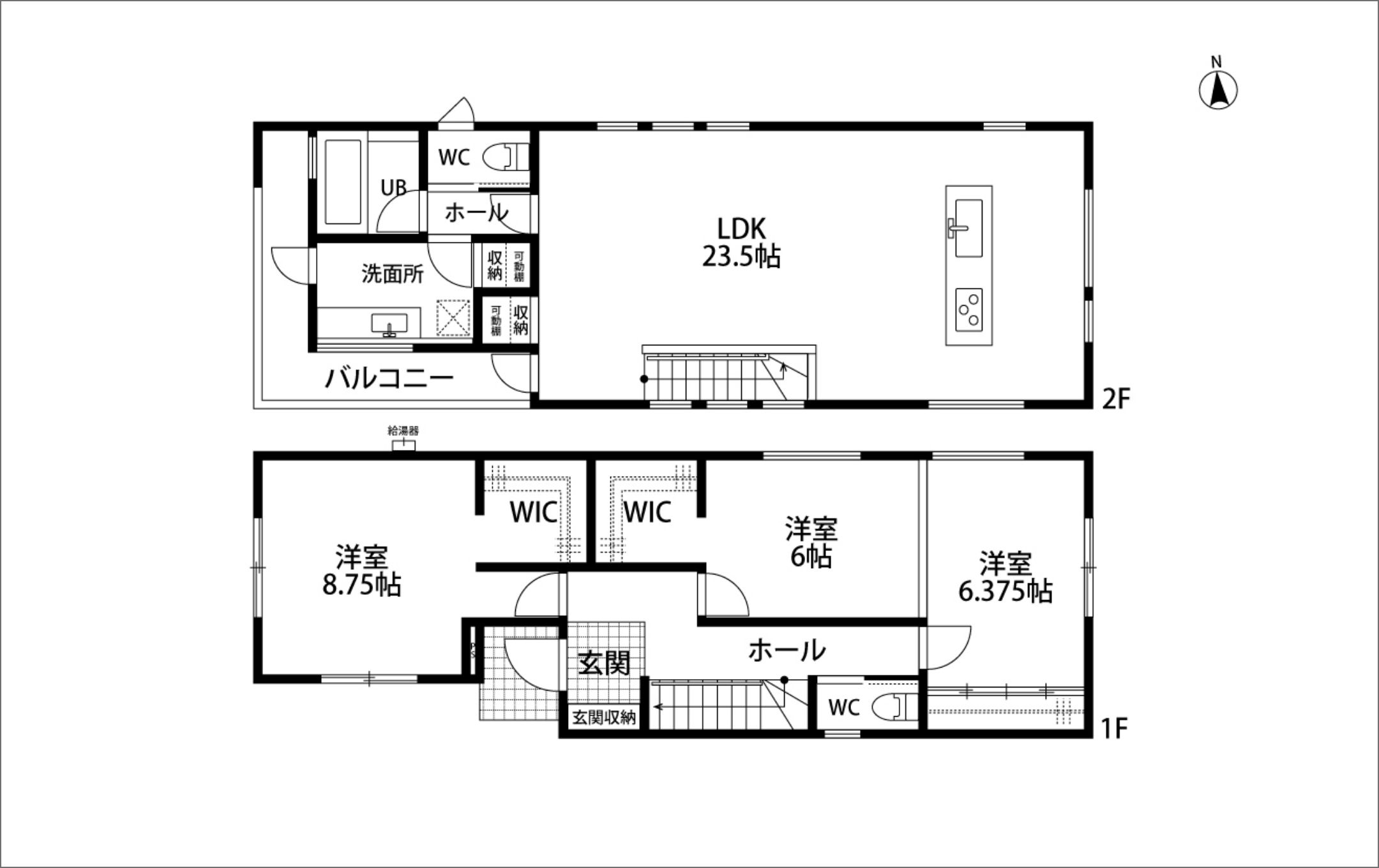
ゆとりある玄関には足元を照らす間接照明が配され、階段下を収納として活用することで無駄のない空間設計を実現。廊下にも柔らかな光が降り注ぎ、夜でも明るく上品な雰囲気を漂わせます。そこから続く階段は片側の壁をなくすことで、2階の窓からの自然光が1階まで届き、住まい全体を明るく包み込みます。
リビングは天井に合わせた窓が隣家との視線を遮りつつ、すっきりとした印象を生み出します。階段横の壁も天井まで届かせずに設計することで、目隠し効果と抜け感を両立。全方位に配置された窓から光が差し込み、見上げれば青空が広がる心地よい大空間が広がります。
ブラックを基調としたアイランドキッチンは、家族が集まりやすく、子どもが走り回れるほどのゆとりを確保。掃除がしやすいガラストップコンロや幅広のシンクを備え、ペンダントライトが上質なアクセントを添えます。
さらに、独立洗面台は収納力に優れ、スツールを置いて身支度ができるゆとりある設計。窓から青空がのぞく明るい空間で、爽やかな一日の始まりを迎えることができます。
Contactお問い合わせ
リノベーションについて知りたい、
相談したいなどお気軽にお問い合わせください。





















